7、产品名称:调制传递函数试验器
产品编号:20251022-07
产品质保:12个月


产品简介:可以按照客户要求非标定制,以下为产品的可供参考的:技术参数与应用说明,仅供参考,更多详情请咨询:廊坊玉双仪器设备有限公司
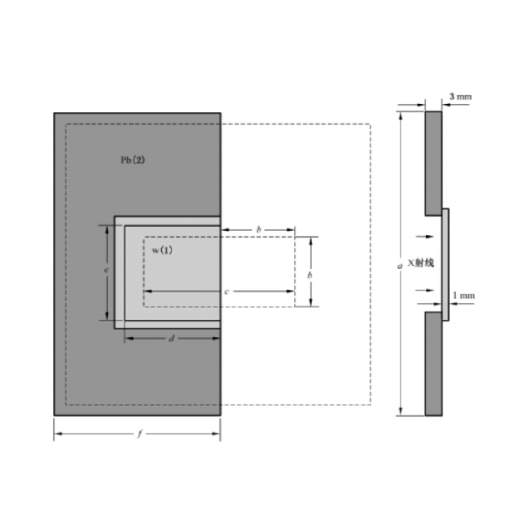
调制传递函数试验器是专为吻合评估数字X射线成像系统性能而设计的核心检测设备,其核心组件包含一块厚度为1毫米、长度100毫米、宽度不低于75毫米的高纯度钨板(纯度需≥90%,不足时需增厚补偿),该钨板边缘经过精密抛光处理,确保与板面严格呈90°直角,边缘起伏精度控制在±5微米以内,以满足高精度成像要求。钨板被牢固安装于3毫米厚的铅质基板上,这种结构设计有效屏蔽杂散干扰,确保测试信号纯净度,特别适用于数字X射线影像探测器调制传递函数(MTF)的单向吻合测定。
该试验器严格遵循《WS76-2020放射卫生用常规X射线诊断设备质量控制检测规范》及国际标准IEC 62220-1(注:原文IEC6222-1疑为笔误,据现行标准应为IEC 62220-1),通过分析成像系统对不同空间频率信号的对比度传递能力,量化其细节分辨性能。MTF作为核心评价指标,实质是成像系统的"细节探测器",数值越高表明设备捕捉微小结构的能力越强。其工作原理基于光学傅里叶分析——将物体视为不同频率正弦信号的叠加,通过测量经X射线系统成像后信号对比度的衰减与相位变化,吻合计算MTF曲线。
除核心MTF测试功能外,该试验器还可拓展应用于两项关键质控项目:一是检测X射线机光野与照射野的吻合度,确保曝光范围吻合;二是验证活动滤线栅(Bucky)中心位置的定位准确性,避免成像偏移。制造商支持非标定制服务,可依据用户特定需求优化器件参数或结构,适配多样化检测场景。该设备已成为放射卫生疗设备质检机构、影像科室及工业无损检测领域验证成像系统分辨率极限的权威工具。
廊坊玉双仪器设备有限公司,竭诚为您服务,我司可以非标订制符合客户个性化要求的产品和设备。
是否可以非标订制:可以按照客户要求非标定制:调制传递函数试验器
产品编号:20251022-07